Hier kunt u uw kabelrupssysteem individueel configureren. Alle invoer en wijzigingen worden in de configuratie aan de zijkant van de pagina overgenomen.
Series E4.56 ESD - Kabelrups, openklikken aan beide zijden met dwarsverbinder op elke schakel
Het ESD E4.1 systeem combineert alle voordelen van haar drie voorgangers en is het beste systeem in het igus® kabelrupsprogramma. De E4.1 series is stabieler met dezelfde of kleinere afmetingen dan haar voorgangers. Vrijwel alle accessoire-componenten en montage-afmetingen zijn identiek. Met het igus® E4.1 systeem, kan de levensduur van uw toepassing nog meer worden verhoogd en daarmee kunnen de kosten worden verlaagd.
- Tand en groef voor ideale laterale stabiliteit, hoge schuifkracht bij lange verplaatsingswegen en voor grote vrijdragende lengten
- Goed geschikt voor 90° toepassingen
- Geluidsreducerende "rem" en geluiddempers als optie
- Buiten- en binnenschakels voor snelle assemblage, met of zonder welving
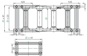
Beschikbare inwendige breedtes Bi: 75 tot max. 300 mm
Beschikbare buigradii R: 135 tot max. 250 mm
Steek: 91 mm / schakels = 11 schakels/m