igus-icon-lupe
igus-icon-lupe
igus-icon-lupe
igus-icon-lupe
1 van 4
igus-icon-arrow-left
igus-icon-arrow-right
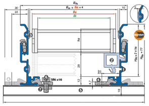
Inwendige hoogte [Hi]
21 mm
Max. kabeldiameter
18 mm

Openingsprincipe
Kan in de inwendige- en uitwendige radius worden geopend
Inwendige breedte [Bi]
30 mm
Krommingsradius [R]
48 mm
Toepassing
igus-icon-checkVrijdragend
Glijdend
Hangend
Kabelrups
igus-icon-lieferzeitE4.21.030.048.0.ESD3048

